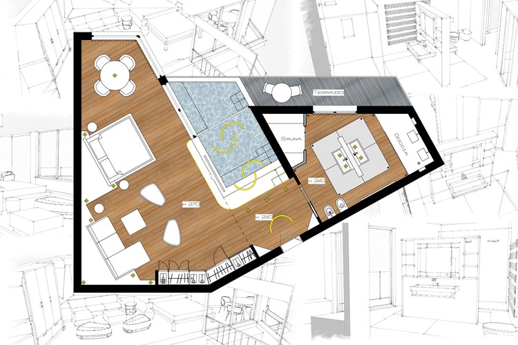
Progetto di sistema alberghiero modulare - 2021
Il progetto prevede la realizzazione di una struttura modulare in grado di ospitare suite di lusso caratterizzate da temi distinti, in questo caso il tema esotico e il tema del Nord Europa.
Le unità modulari possono essere accorpate tra loro, consentendo la creazione di diverse configurazioni architettoniche. Questo approccio permette di sviluppare sistemi costruttivi differenti, che spaziano dalle torri a composizioni più organiche e fluide, adattandosi così a contesti e funzioni variabili.

