Progetto di fabbricato residenziale - 2024\2025 - Bordighera (IM) - iter concluso - in fase di esecuzione
TIPOLOGIA: EDIFICIO RESIDENZIALE UNIFAMILIARE
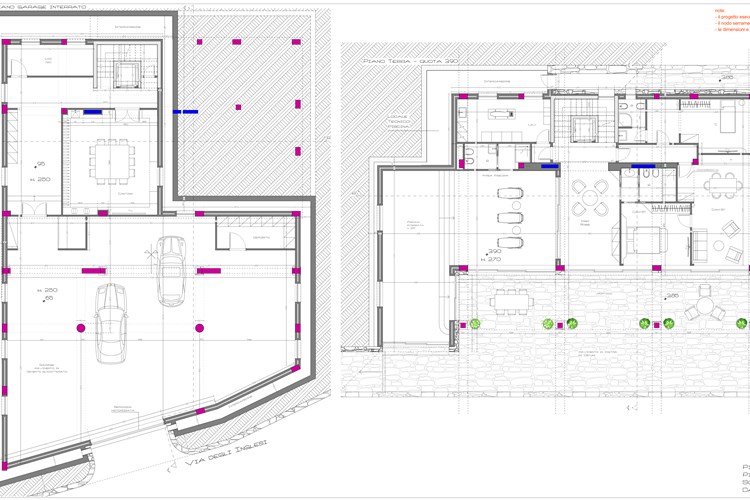
LOCALIZZAZIONE: COMUNE DI BORDIGHERA (IM) - VIA DEGLI INGLESI
COMMITTENTE: PRIVATO
ANNO: 2024\2025
VOLUME: 2.400,00 MC
1. Contesto e preesistenze
L’edificio oggetto del progetto si trova in un’area caratterizzata da un mix di abitazioni unifamiliari e plurifamiliari, con architetture contemporanee e tradizionali. I tetti predominanti sono piani o a padiglione, mentre le residenze circostanti spaziano da ville monopiano a edifici di tre-quattro piani e piccoli condomini.
L’edificio esistente presenta:
Copertura piana con terrazza principale
Piano interrato e primo piano fuori terra
Area esterna con giardino e piscina curva preesistente
Portico/passerella collegante la terrazza al retro, con funzione di belvedere e cabine da spiaggia
L’abitazione attuale non è vincolata da pregio storico o architettonico particolare e pertanto può essere oggetto di ristrutturazione e ampliamento.
2. Interventi previsti
Demolizione e ricostruzione di volume esistente con aumento volumetrico
Autorimessa e accessi:
Nuova autorimessa interrata ricavata nel giardino antistante, con accesso diretto da Via degli Inglesi
Realizzazione di un nuovo accesso pedonale, mantenendo le quote dei livelli esistenti
Giardino e aree esterne:
Riorganizzazione del giardino esistente, con mantenimento di parte della vegetazione attuale
Introduzione di nuove specie locali e alberi ad alto fusto per rigenerare l’area
Vialetti in pietra di Ostuni, posati a opus incertum o regolare, collegando gli accessi e costeggiando i muri esistenti
Piscine:
Ristrutturazione della piscina esistente, portata a quota costante di 150 cm, finitura in pietra o mosaico, tipo high skimmer
Realizzazione di una seconda piscina al piano interrato, per uso invernale
Vano tecnico delle piscine ricavato al piano garage
Raccolta e gestione delle acque piovane per irrigazione e drenaggio
3. Materiali e finiture
Struttura e involucro:
Ampliamento in cemento armato con setti perimetrali e isolamento
Divisioni interne con tramezzi forati da 8 cm
Intonaco interno a calce, tinteggiato con pittura lavabile
Intonaco esterno color crema
Pavimenti e rivestimenti:
Interni: gres porcellanato, travertino o piastrelle in legno
Rivestimenti: gres o similari
Infissi esterni: alluminio/legno o legno color crema
Porte interne: legno laccato
Coperture e tetto:
Tetto piano in pietra di Ostuni con chiusura verde e collettori solari
Gronde e pluviali in rame
Balaustre e ringhiere in vetrocamera
Pavimentazioni esterne:
Pietra di Ostuni, posata a opus incertum o regolare
Vialetti e percorsi collegano accessi e giardino
4. Inserimento paesaggistico e sostenibilità
L’edificio, di chiara identità contemporanea, sostituirà quello esistente senza alterare il paesaggio circostante
Il giardino, con nuove piantumazioni e alberi ad alto fusto, garantirà il corretto inserimento nel contesto
Le piscine e i sistemi di raccolta delle acque piovane contribuiranno alla sostenibilità e al comfort dell’abitazione
5. Risultati attesi
Creazione di un edificio residenziale contemporaneo e armonico nel contesto storico-collinare
Miglioramento della funzionalità interna ed esterna
Integrazione paesaggistica e valorizzazione del giardino e delle aree esterne
Sicurezza, comfort e qualità estetica elevate

