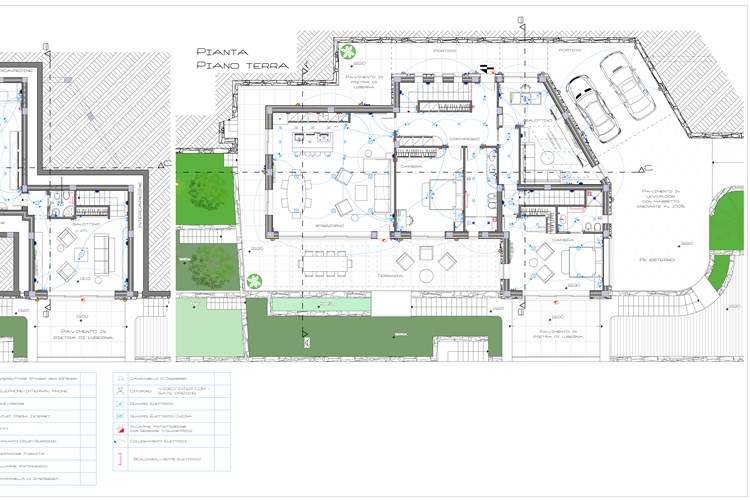
Progetto di fabbricato residenziale monofamiliare - 2025 - Bordighera (IM) - in costruzione
TIPOLOGIA: EDIFICIO RESIDENZIALE UNIFAMILIARE
LOCALIZZAZIONE: COMUNE DI BORDIGHERA (IM) - LOCALITA' MONTENERO - VIA DELLA CAVA
COMMITTENTE: PRIVATO
ANNO: 2025
VOLUME: 1.080,00 MC

