Progetto per un nuovo collegamento ciclo-pedonale - 2023 - in iter
Bordighera: storia, fascino e progetto di riqualificazione
Bordighera è una cittadina affacciata sul mare, a pochi chilometri dal confine francese. Nel corso della sua storia, ha ospitato pittori, scrittori, architetti, reali, politici e filosofi. Già all’inizio del Novecento, la città era una delle mete turistiche più importanti d’Europa.
Oggi, molte testimonianze di quel passato prestigioso sono ancora visibili: ville inglesi, la villa della Regina Margherita, i dipinti di Monet, le architetture di Charles Garnier, gli scritti di Dickens e il lungomare Argentina, dedicato a Evita Peron che lo visitò nel 1947. Il clima caldo e ventilato e la vegetazione rigogliosa hanno sempre dato alla città un aspetto esotico, più vicino a paesi stranieri che all’Italia.
Nonostante la sua bellezza paesaggistica, Bordighera ha perso parte del fascino che l’ha resa famosa. Tuttavia, chi la ama continua a frequentarla, nella speranza che ogni anno accada qualcosa di speciale in grado di riportarla al suo antico splendore. Dal punto di vista urbanistico, basterebbe poco per valorizzare ulteriormente la città, poiché le aree da riqualificare sono poche e i luoghi sono già di grande pregio.
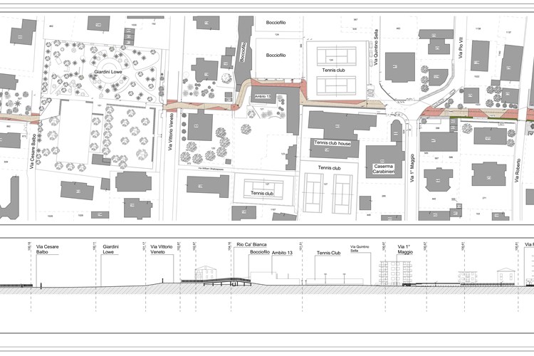
Uno dei progetti più interessanti riguarda il collegamento tra Corso Italia e le vie Giovanni Falcone, Paolo Borsellino e Scopelli attraverso un percorso ciclo-pedonale. Attualmente, l’area è costituita da “pezzi” di città da unire, tra spazi pubblici e privati (principalmente giardini) in contesti residenziali. Il nuovo percorso seguirà le previsioni di piano originarie, con alcune piccole varianti per ottimizzare il passaggio in base alle proprietà esistenti, prevedendo una costruzione completamente fuori terra.
Caratteristiche del percorso:
-
Larghezza variabile a seconda del terreno.
-
Passeggiata pedonale aperta anche a biciclette e mezzi a due ruote non motorizzati.
-
Accesso garantito ai mezzi di soccorso lungo gran parte del tracciato.
-
Possibilità di ospitare eventi con gazebo nei tratti più ampi.
-
Collegamento a livello dei marciapiedi esistenti.
-
Nuovo sistema di verde alberato, integrando i Giardini Lowe e l’area del Tennis Club.
-
Pavimentazione in calcestruzzo architettonico e ghiaia (o asfalto colorato), con giunti in acciaio Corten a conferire un aspetto geometrico. Alcune lastre e scarichi riporteranno i nomi di personaggi illustri legati alla città.
-
Illuminazione pubblica a pali alti massimo 3 metri, con rete elettrica interrata, protezioni di sicurezza e sistema Wi-Fi cittadino.
-
Telecamere di videosorveglianza posizionate lungo il percorso per la sicurezza.
-
Selezione di piante ed essenze che coniugano estetica, funzionalità e richiamo alla tradizione esotica di Bordighera.
Questo intervento mira a trasformare il percorso in una “Cosa Speciale”, capace di valorizzare la città sia dal punto di vista estetico che funzionale, rafforzando la sua vocazione turistica, culturale e ricreativa.

