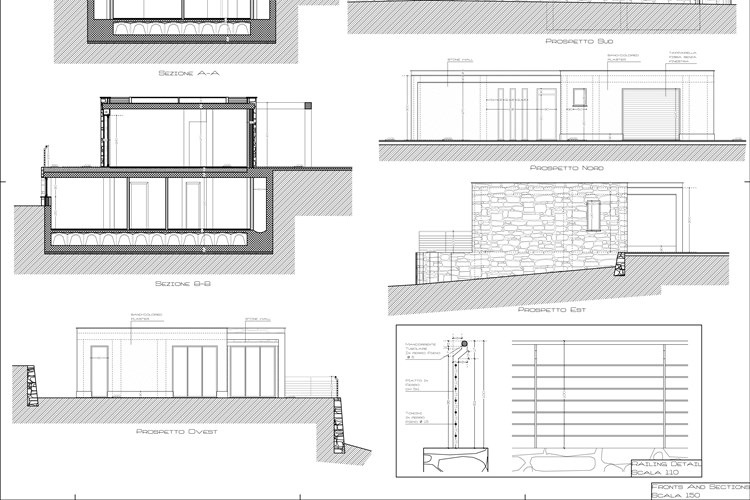
Progetto di edificio residenziale - 2021 - Bordighera (IM) - completato
TIPOLOGIA: EDIFICIO RESIDENZIALE UNIFAMILIARE
LOCALIZZAZIONE: COMUNE DI BORDIGHERA (IM) - VIA JEAN COCTEAU
COMMITTENTE: PRIVATO
ANNO: 2021
VOLUME:600,00 MC
Progetto di edilizia residenziale sulla prima collina del Comune di Bordighera. Il progetto, dalle forme semplici e lineari, mira a fondersi con il terreno esistente, creando una perfetta integrazione ambientale con i tipici terrazzamenti locali.

